Current licensing applications
This webpage details licensing applications currently in process under the Licensing Act 2003.
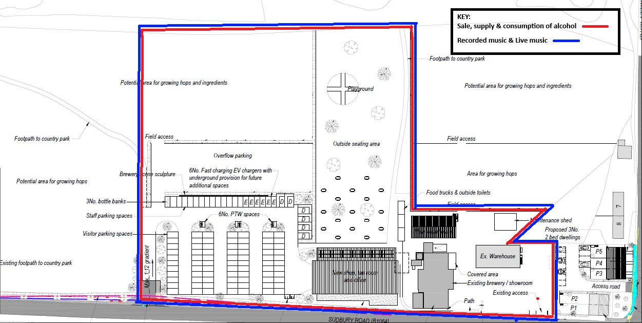
Nethergate Brewery, Long Melford, Sudbury
| Reference/Type: | Section 17/ New Premise Licence Application |
|---|---|
| Premise: | Nethergate Brewery, Rodbridge Corner, Long Melford, Sudbury, Suffolk, CO10 9HJ. |
| Applicant: | Nethergate Brewery |
| Public Consultation end date: | 9 March 2026 |
| Application Summary: | Brewery, Shop, Cafe & Taproom, Sale and Supply of Alcohol ON & OFF the premises, Live Music & Recorded Indoors & Outdoors |
| Documentation: | Please read Nethergate Brewery application, Please read Nethergate Brewery Plan. |
The Constable Memorial Hall
| Reference/Type: | Section 17/New Premise Licence Application |
|---|---|
| Premise: | The Constable Memorial Hall, Gandish Road, East Bergholt, Colchester CO7 6TP |
| Applicant: | The Constable Memorial Hall Management Committee |
| Public Consultation end date: | 24 March 2026 |
| Application Summary: | Village Hall with Sale & Supply of Alcohol ON the premise, Live & Recorded Music, Dance, Plays (indoors & outdoors), Film indoors & Indoor Sporting Events |
| Documentation: | Please read Constable Memorial Hall application, please read Constable Memorial Hall plan 1, please read Constable Memorial Hall plan 2. |
Juniper Flowers
| Reference/Type | Section 17/New Premise Licence Application |
|---|---|
| Premise: | Juniper Flowers, 78-79 North Street, Sudbury CO10 1RF |
| Applicant: | Lianda Phillips |
| Public Consultation end date: | 26 March 2026 |
| Application Summary: | Sale & Supply of Alcohol Off the premise, 24hrs online sales facilitated between 09:00hrs & 17:00hrs |
| Documentation: | Please read Juniper Flowers application, please read Juniper Flowers Appendix A, please read Juniper Flowers plan. |
Comment on a licensing application
Representations must be made in writing for the attention of the Licensing Team, Babergh District Council (as the Licensing Authority) at Endeavour House, 8 Russell Road, Ipswich IP1 2BX, or by email to licensingteam@baberghmidsuffolk.gov.uk
We have published guidance on how to comment on a licence.
It is an offence knowingly or recklessly to make a false statement in connection with an application and the maximum fine for which a person is liable on summary conviction for the offence is unlimited.